

Phonetica
Магазин техники Apple с г. Тверь
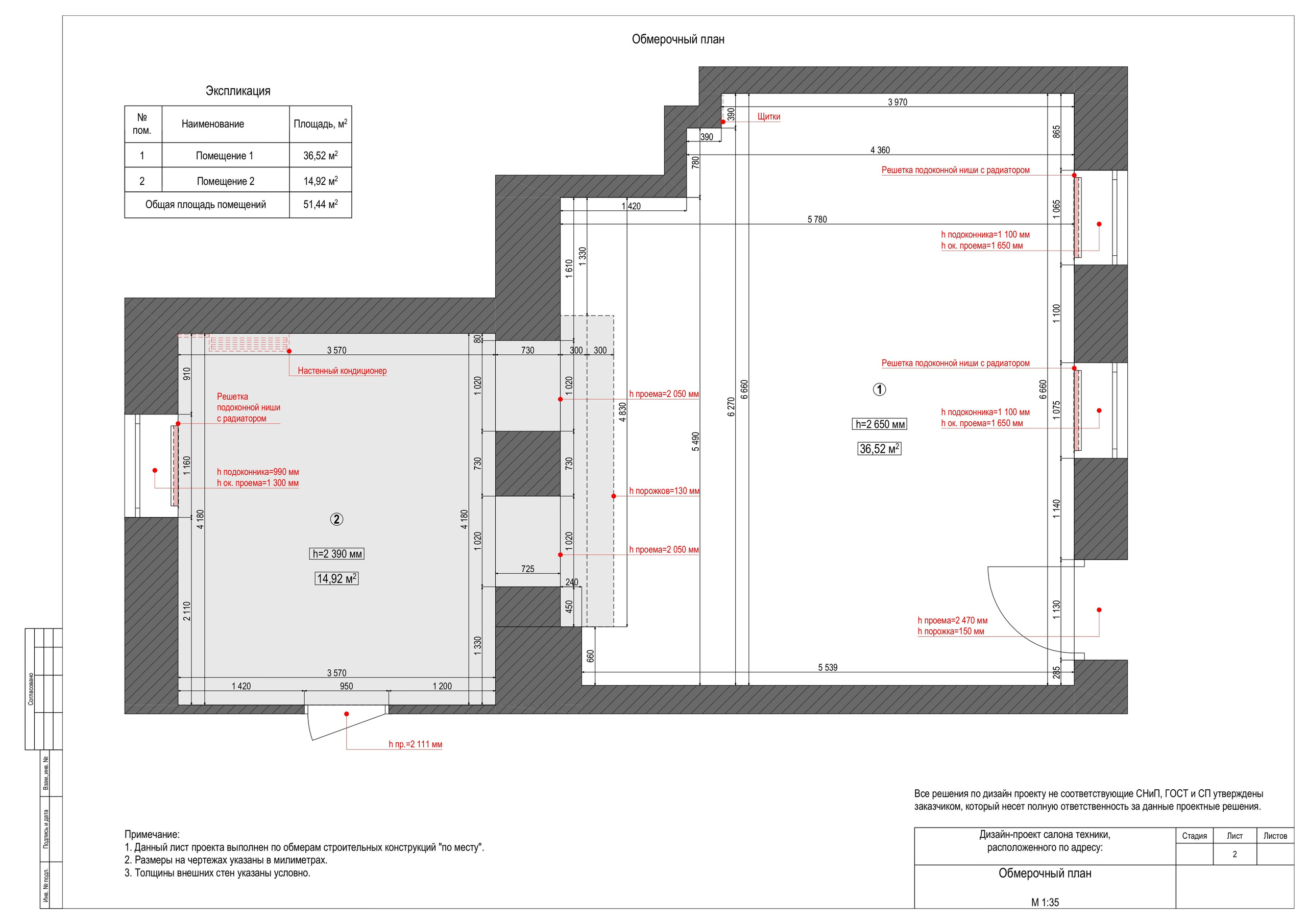
Ребята обратились с хорошим исходным помещением, которое потребовалось лишь освежить, наполнить корпусной мебелью, а также выделить акценты фирменным цветом.




Магазин техники Apple с г. Тверь
Ребята обратились с хорошим исходным помещением, которое потребовалось лишь освежить, наполнить корпусной мебелью, а также выделить акценты фирменным цветом.

