ДИЗАЙН-ПРОЕКТ включает в себя:
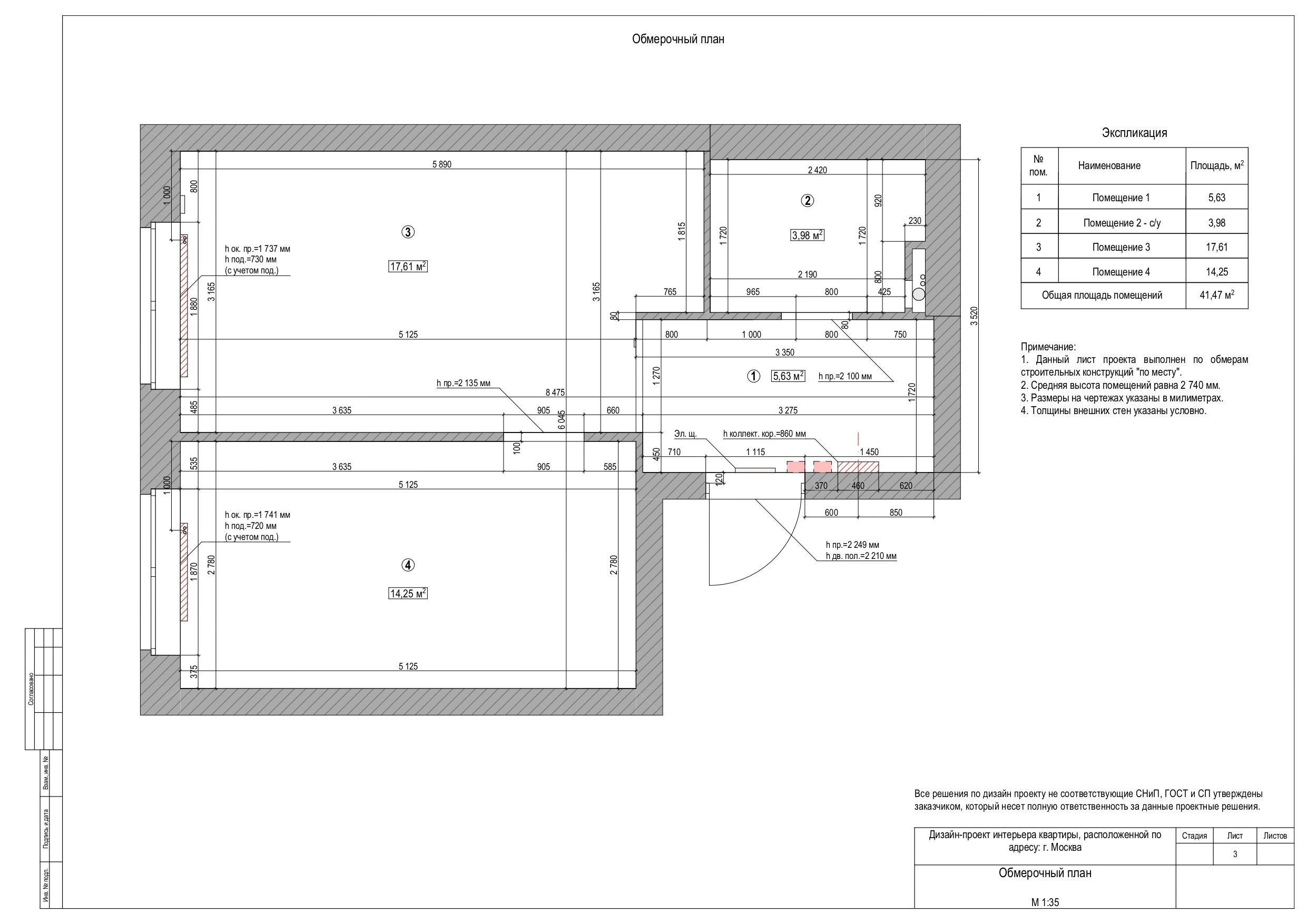
- Обмерочный план;
- План демонтажных работ;
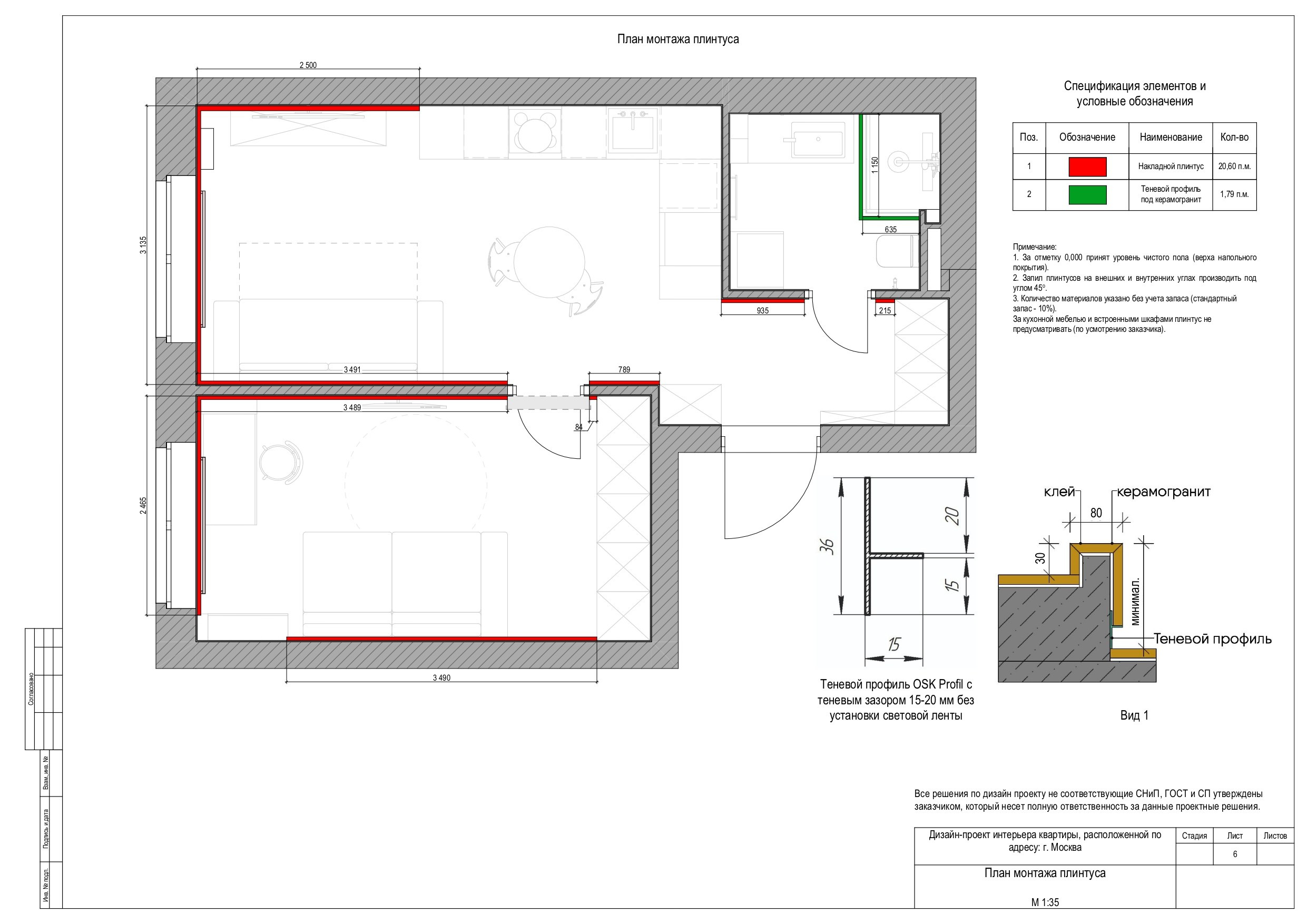
- План монтажных работ;
- План перепланировки;
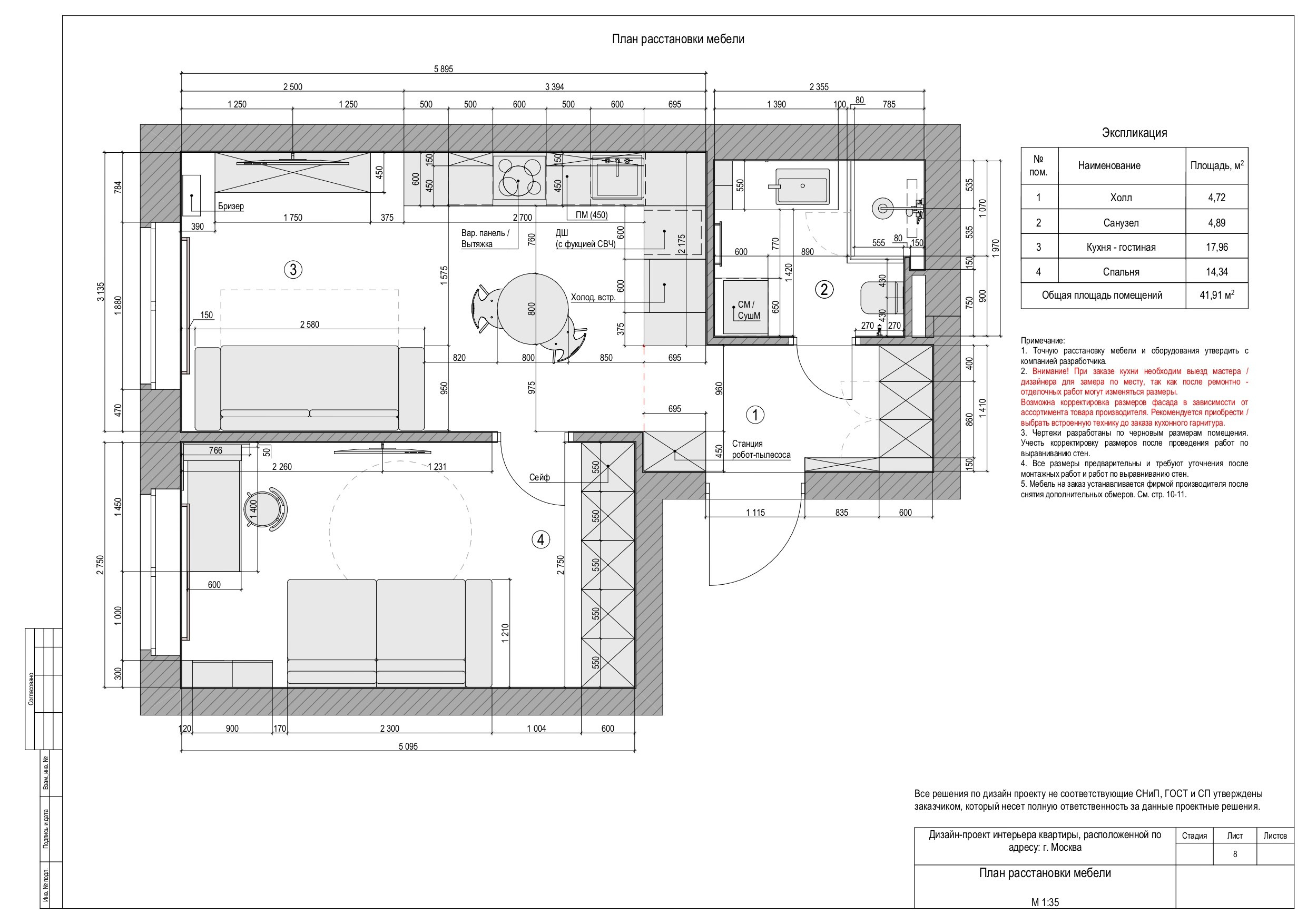
- План расстановки мебели и оборудования;
- План привязки эл. оборудования;
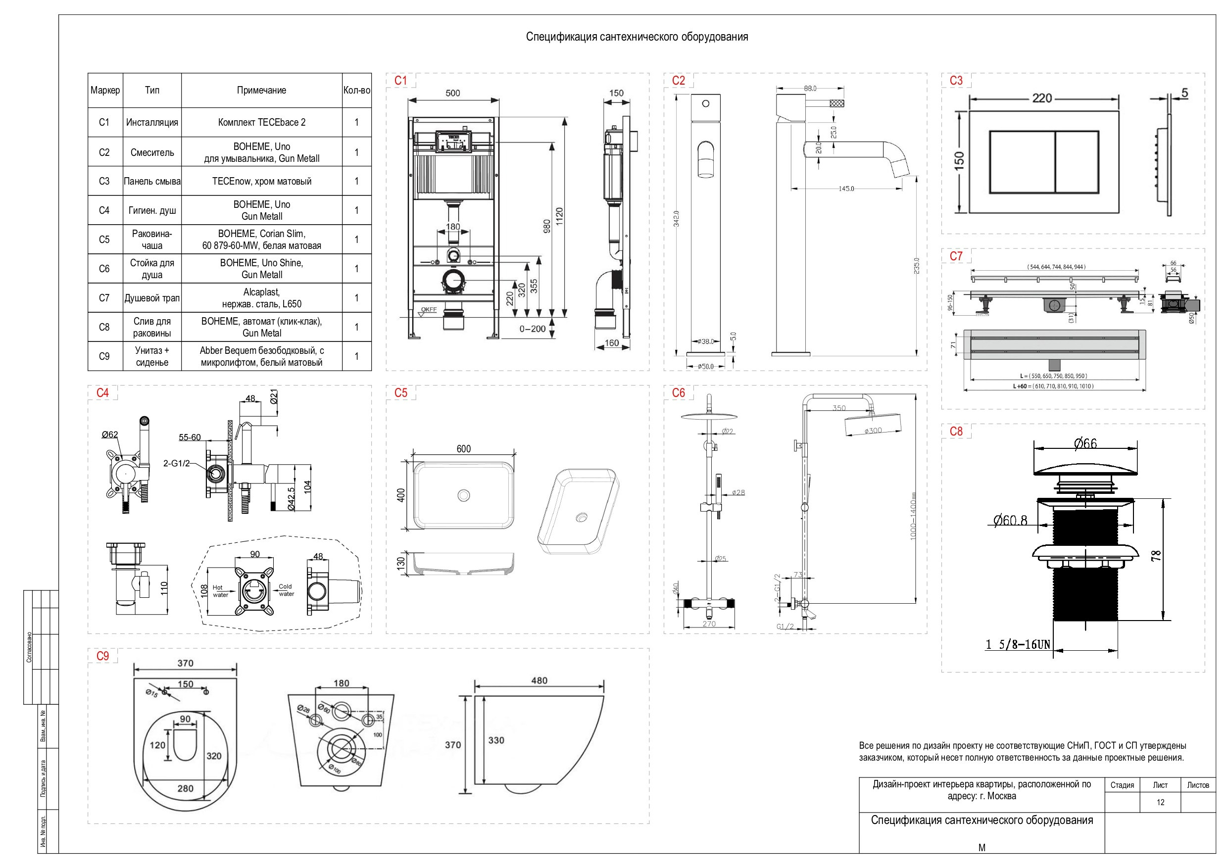
- План привязки сантехнического оборудования;
- Схема расположения выводов канализации и водоснабжения;
- План расположения розеток и выключателей;
- План расположения осветительных приборов;
- План привязки освещения по группам;
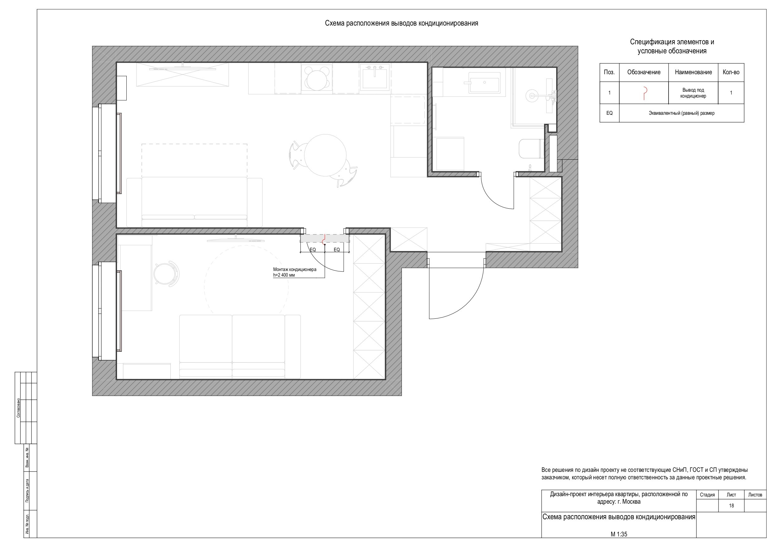
- План выводов для кондиционирования;
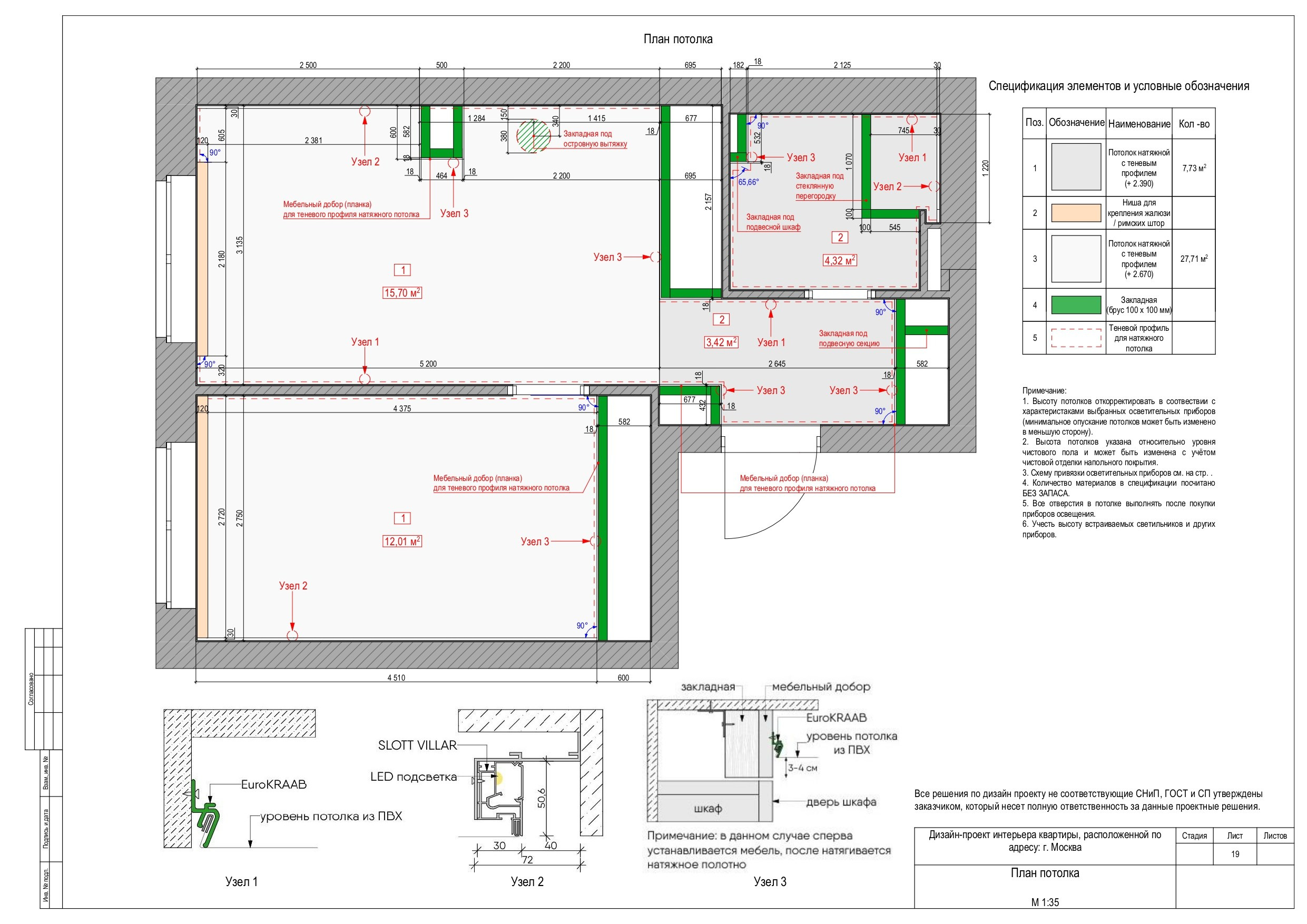
- План потолка;
- План напольных покрытий;
- План расположения отопительных приборов;
- Схема заполнения дверных проемов;
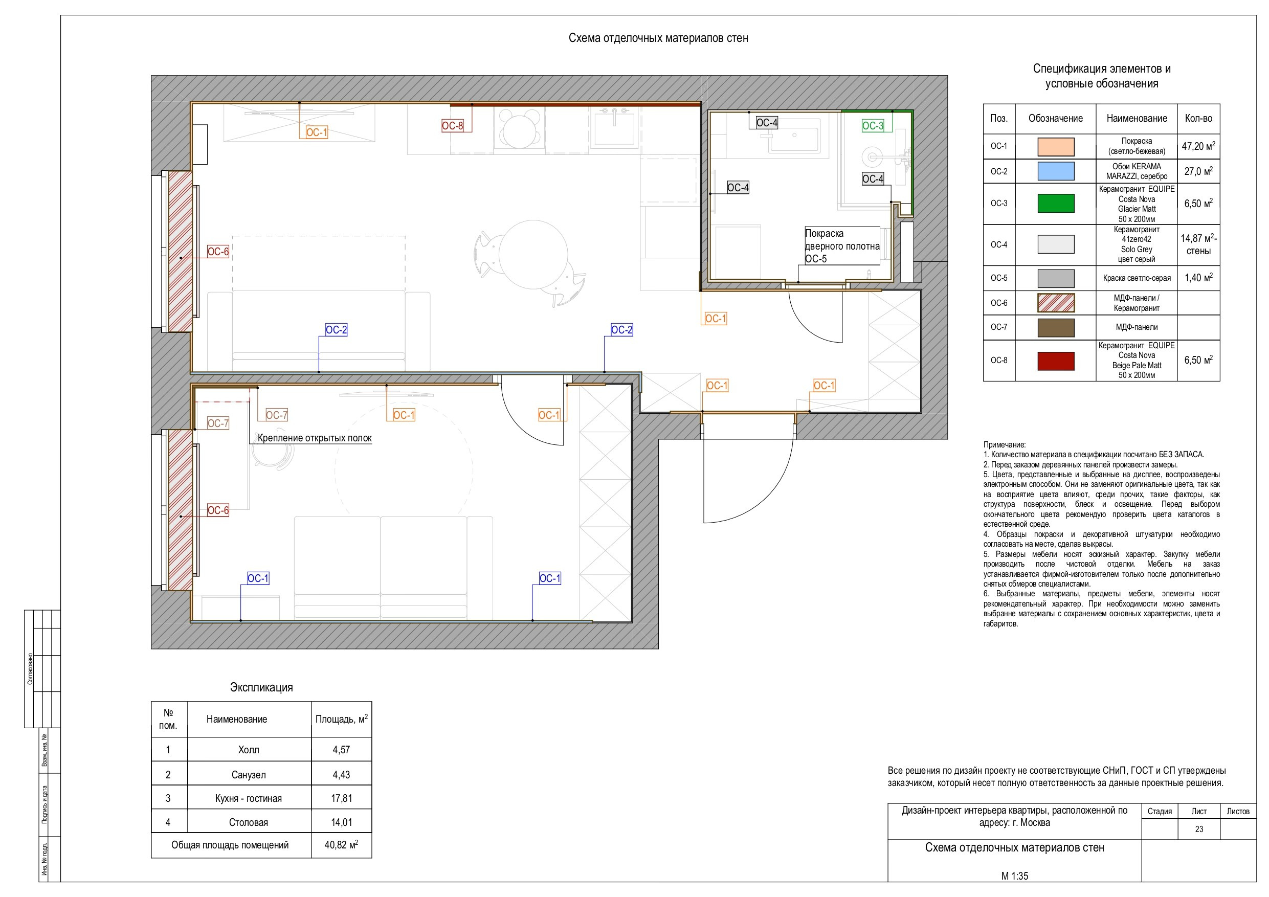
- Развертки стен помещений;
Ведомость отделочных материалов, спецификация осветительных приборов, сантехнического оборудования, готовых / под заказ позиций мебели.





























